Hi my ground flour plan
13 years ago
Featured Answer
Sort by:Oldest
Comments (6)
- 13 years ago
Related Discussions
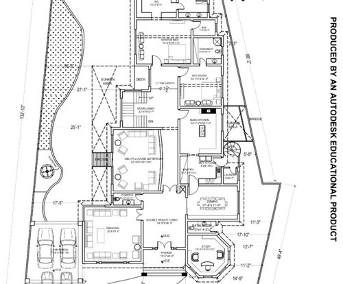
Need help with my luxury holiday rentals floor plan!
Comments (56)Oh wow you have been busy! It's funny, I was at my Mum's today and we were discussing your plans. We decided the bunk room was a bit small and she suggested moving it back like you have done. Agree the fireplace will be be better on the western wall, with flow from the kitchen to the backyard with large doors. I'm torn about whether the changes to make the mudroom bigger are changing too much what I loved about the previous iteration, i.e. the void and the toilet placement. Although my hubbie wasn't sure about the toilet where it was previously as he was worried sound would carry into the lounge I never thought of that to be honest and really liked how it entered from under the stairs ♀️ No views to the south so no need for the window seat, would prefer the void I think and no need for bath downstairs. Which version do you think works better? Perhaps the mudroom was big enough? I did like the extra room off it for storage etc Thanks so much for the renders, I'm a bit concerned that it now doesn't look like my original picture. I'm really trying to keep the look as American as possible with the pitch of the veranda and the pitch of the roof. This style has been my dream and is really so much a part of my vision. I don't want something that looks similar to other houses. Sorry if this seems silly. My builder did mention about the gas bottles and how they need to see their truck. Good idea between the carports. I wonder if it's cost prohibitive to have them buried at the front? Can I ask what the total sqm is for both upstairs and down?...See MoreRequest for feedback on my new floor plan
Comments (12)Thanks a million Oklouise. I am thrilled by this - the amount of thought and time that you have so kindly put into this for me is amazing. I am eternally grateful. I agree with the changes you have made , especially the balcony over the courtyard, it certainly would make a lot more sense to have it on the front of the house, Perhaps in front of the Mfamily room....See MoreWhat do you think of my floor plan for my new home?
Comments (73)This floor plan has a single garage, with bedrooms grouped together at the front of the house, the Music Room has been moved to the rear away from the bedrooms as it would make too much noise for those sleeping. It can now be opened up to the family kitchen dining, courtyard and Alfresco and can be used as a play room(/ guest room) giving children great indoor out door play area in view of parents. There's a study with a similar view. A powder room closer to the rear of the house for easy access, The main bathroom is done Japanese style. The master suite has the WIR between the bed and the ensuite, no noise etc when in use to disturb anyone. I have made the passage way extra wide and more like a room which has a linen cupboard, you could certainly make this narrower and add to the bedrooms if you wished, This comes to 204.5 sq m. cheers...See MoreFloor-plan feedback/ideas needed -What do you think of this floor-plan
Comments (51)siriuskey, Yes, the courtyard is open to the sky (no roof over it), I assume this is what you mean by double story. Ref. below photos, I would love to get this look, especially the first and last photo, where you can see family living space from the first floor. I can't achieve this in my plan as it eats a lot of floor space upstairs. The referred plan (photos) has a very big void combining staircase, hallway and dining area. I know it is not easy with cooling and heating when you have such a big void. So, I explored a few ideas (with my limited knowledge on this topic) before achieving the current floorplan. I have also thought about, in my current plan, extending the void on the staircase to the dining area (it is more like L shape) but i wasn't sure if that makes any difference. keen to hear your thoughts....See More- 13 years ago
- 13 years ago
- 13 years ago
- 13 years ago



The Design Mill