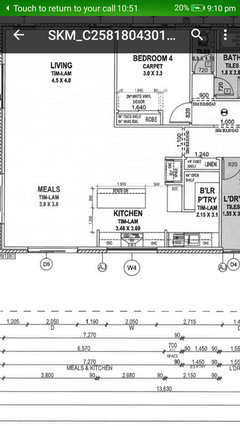
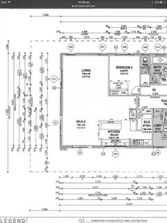
Double sink on Butler instead in the Main Kitchen
8 years ago
last modified: 8 years ago
Featured Answer
Sort by:Oldest
Comments (54)
- 8 years ago
- 8 years ago
Related Discussions
single sink in kitchen and double in butler's pantry??
Comments (8)Hi qlder, how funny that we had the same dilemma a few months ago... when I said to interior designer that butler's sink was too small (and it was miniature :/ ) she too suggested we swapped sinks by putting the double in the butler's pantry and the butler's sink in the kitchen... initially I thought great idea, but then I realised the whole point of designing an open plan kitchen was so I could be part of the action while in the kitchen, most of which time I spend at the sink... another point to consider is that if you have kids/teenagers, they're not going to bother going around to the butler's pantry and will just dump their dirty dishes at the nearest available sink, then you end up taking them to the bigger sink... I have seen display homes with double sinks in butler's pantry but then so was the dishwasher, and I note from your post that your dishwasher's in the kitchen so it would make more sense to me to have the double sink there as well... in the end we kept the double sink in the kitchen (personal pref & for reasons stated above) but as the butler's sink was way too small, we upgraded to a bigger 'laundry trough size' sink for washing pots and pans etc in the butler's pantry...See MoreHelp with plans -kitchen butlers laundry
Comments (7)oklouise. Thanks for your input. Never thought of moving stairs. There is nothing under the laundry etc. so garbage Shute would not work. the garage is sunken and the right side lounge etc of the house is I think 1.5 mtrs above floor. The architect is trying to work with the land which has a 5m fall towards the street. Hence the stairs upstairs are towards the back of the house. Just to give you a good idea I have attached a copy of the whole ground floor....See MoreHelp! Not enough space for my butler's pantry sink
Comments (52)Unfortunately Erina, your best bet sometimes in this industry is to cut your losses and if it important enough to rectify, outsource a separate contractor/company to come in and re-do it at your own expense.....you just have to look at it as part of the cost of your project.......many people will have stories of deciding pay twice (sometimes more!) to eventually achieve the satisfactory results - ultimately you have to live with it long term and sometimes it's worth it to get it right....ultimately only you can make that decision one way or the other........it's not necessarily right or fair, but unfortunately these are the risks (& hard lessons) of building Best of luck Erina, PD :)...See MoreI’m renovating my downstairs main bathroom to include a butlers sink.
Comments (4)Hi @esterman4, This configuration is not popular and as such you might have some issues finding a cabinet suitable to match your butlers sink. You may need to discuss with a cabinet maker to make you a custom vanity, or you could try modifying a vanity that is ready built, but it could be difficult, you will also need to hire a professional to do this. If you're looking for an alternative solution, we have a wide range of vanities that are designed with a variety of sizes, styles, and materials to choose from. You can easily buy it online, and we offer delivery Australia-wide! Looking forward to see the photos once your project is done....See More- 8 years ago
- 8 years agolast modified: 8 years ago
- 8 years agolast modified: 8 years ago
- 8 years ago
- 8 years ago
- 8 years ago
- 8 years ago
- 8 years ago
- 7 years ago
- 7 years ago
- 7 years agolast modified: 7 years ago
- 7 years ago
- 7 years agolast modified: 7 years ago
- 7 years agolast modified: 7 years ago
- 7 years ago
- 7 years ago
- 7 years ago
- 7 years agolast modified: 7 years ago
- 7 years ago
- 7 years ago
- 7 years ago
- 7 years ago
- 7 years ago
- 7 years ago
- 7 years ago
- 7 years ago
- 7 years ago
- 7 years ago
- 7 years ago
- 7 years ago
- 7 years agolast modified: 7 years ago
- 7 years ago
- 7 years ago
- 7 years ago
- 7 years ago
- 7 years ago
- 7 years ago
- 7 years ago
- 7 years ago
- 7 years ago
- 7 years ago
- 7 years agolast modified: 7 years ago
- 7 years ago
- 7 years ago
- 7 years ago
- 7 years ago
- 4 years ago


















ramcub