Advice RE making back yard kid and entertaining friendly
7 years ago
Featured Answer
Sort by:Oldest
Comments (12)
- 7 years ago
- 7 years ago
Related Discussions
Irregular shaped back yard
Comments (11)I'm sure most people would envy you the pool and potential this area has. Not sure what your requirements are when it comes to "use" of the land. Have you thought of a cabana at the end of the big pool in front of the shed? It would hide the shed and at the same time give you a focal point that draws the eye to the beautiful length of the pool... and at the same time provide a visual full stop with the cabana. (If money is an issue....I recently purchased a beautiful outdoor gazebo and placed it on our outdoor wooden deck which was always too hot to sit on and the whole family now sits out there under the gazebo for most of our meals-I like to make flat land-useable land) The surrounding gardens (I agree with fianou) that large leafed, tropical plants would help soften the overall look (if that's what you want/like) . Other people like the harder lines and a starker more modern look. If that's the case then put in more structural plants. Just depends on your own personal taste. Not sure that the existing palm trees are a help or a hindrance as many drop seeds into the pool and from a visual point of view can look like telegraph poles if not under-planted with other medium sized shrubs that balance the overall design. If there are surrounding areas that you want to use as pathways...Astro Turf is a great alternative to traditional hard surface choices.Good luck with your plans!...See MoreLandscaping advice for new garden beds - Mornington Peninsula
Comments (10)Given your coastal location and aims for both coherence and low maintenance, you have a wonderful opportunity here to landscape your garden entirely with natives. As you’ve already decided to start with lillypillies (careful to avoid the variety prone to psyllid - the most resistant varieties according to Don Burke are Acmena smithii and Syzygium luehmannii: http://www.burkesbackyard.com.au/fact-sheets/in-the-garden/flowering-plants-shrubs/best-lilly-pilly-varieties/#.Vq0lfMf2PNw), I suggest you refrain from mixing in exotics to any significant degree apart from specimen pots, or other feature items. This way you have control over high maintenance species which should be nurtured for their specialness rather than a becoming a chore to avoid. I spent time visiting friends and family on the Mornington Peninsula this time last year and was shocked at the mindless distribution of what would be considered rampant bushland pests (invasive weeds) in NSW. The entire peninsula seems to boast only remnants of bushland with robust integrity. Agapanthus – because of its hardiness – has decimated vulnerable parts of the NSW bushland (especially in the Blue Mountains), requiring teams of volunteers to hack it out from rainforest and catchment areas in all weathers. Of course aggies are most romantic lining a long gravel path to a mansion, but this does not appear to be your situation here. Forgiveable in past eras, there is now no excuse for beautiful, fire-prone coastal landscapes to be placed under siege by introduced species. A substitute native I have successfully grown is Libertia, which clumps beautifully, is hardy and has a lovely little white star flower in the spring. Herewith some suggestions for conceptualizing a native garden, whose purpose, while often forgotten, is to attract birds and butterflies and to generate beauty and harmony and a sense of peace. It goes without saying that bonuses to the spiritual dimension are the disappearance of weeds and a farewell to mowing. A guiding principle in selecting natives is to select species native to your area first; information is readily available online. It’s not a hard and fast rule, but can save heartache when it comes to planting trees and shrubs that have evolved successfully in other soils and climates yet may fail in yours. Suggest a drive around the area to observe established native gardens to gain inspiration. First off (so long as not near power lines) I’d echo your coastal gums by planting an advanced specimen bang on your front right hand corner boundary, from where you might radiate a rockery. Your front garden cries out for drama, and while a rockery may be your biggest expense, one or two large feature rocks placed among an undulating design can be filled with scattered smaller rocks and a wide range of sun-loving and architectural flowering grasses (e.g. lomandras, dianellas, fescues, grass trees, kangaroo paws, etc), gorgeous flowering native plants (e.g. correas, philothecas, westringias, waratahs, proteas, etc), shrubs (e.g. acacias indigenous to the area), and groundcovers (e.g. myoporum, pratia, and brachyscome, prostrate form grevillias, the beautiful rock cover scleranthus biflorus, etc) will bring endless birds and human happiness. As for shrubs and trees, the choice is endless, thus requiring planning in consideration of the growth habit and life of a tree - which in the case of acacias, may be a mere 15 years. Decomposed granite will keep large and small landscaped areas (such as paths and rockeries) free of weed and also provides nutrients to natives (cautiously spray weeded ground with a strong solution of glyphosate before laying gravel). Be careful not to place too much soil over the tops of roots when planting, as many natives absorb phosphorus this way. Seasol is fine as a wash-through fertilizer after planting, and planting just before rain is due is another handy tip for a nitrogen fix from mother nature. Frequented by nectar-loving and berry-eating birds, the long-lived Blueberry Ash (Elaeocarus reticulatis) has to be one of the prettiest native trees of all, with its grey green foliage all year, feathery pale pink flowers in spring, and blue berries in winter. It can be hedged, but is at its best lightly pruned. It is comfortable in semi-shade, so could be planted as a feature tree out the back, but could also be a stunning success as a hedge from your garage to the letterbox. Grevillias (Mallee Dawn has soft foliage and a lovely pale orange flower) and Callistemons are relatively fast-growing once established and will quickly attract native birds (especially honey-eaters which will then gain confidence to move into other protected areas of your garden; always best to place birdbaths among shrubbery - e.g. the white-flowered Leionema – to offer little birds rapidly disappearing from the Peninsula the protection they need). Victorian Christmas Bush is a mid-height stunner and Isopogon is fabulous planted under banksias and hakeas for a bushy spot. I one saw a gnarled old banksia out front of a house that was probably the most beautiful tree I have ever clapped eyes on, perfectly pruned with its trunk formed like a bonsai writ large). A weeping acacia cognata makes a great corner feature or specimen tree, and a native hibiscus will flower profusely and gloriously in full sun. Shade at back and side cry out for more romance. You might plant native violets to run up the side under a hedge, or to fill a corner rockery out the back. Suggest plant hedges/screens and feature trees first (thus establishing your shade ‘canopy’), and construct a temporary planter box somewhere out the back where you can bring on smaller plants and shrubs while waiting to decide where to put them. The squareness of the back garden can be broken up and softened by strategically placed trees and shrubs, e.g. a large native tree in the left corner, that segues into your lillypillies, under which you could landscape a seating area. You might consider a Kennedia, Clematis aristata, or Pandorea pandorana (Wonga Wonga vine) to cover the side fence behind the garage (and definitely the back shed!). You might add two more callistemons to surround the back shed to conceal it, as well as adding variety and interest. You might infest patches of your back lawn with a native variety, such as weeping wallaby grass (e.g. Griffin). You could dig a shallow trench along the retaining wall and plant a dwarf lillypilly hedge (or substitute, like dwarf acacia cognata) along its length. One might even concede English box for the spot. Native violets/native geraniums (geranium solanderi) will both cascade over the side of any retaining wall, and will prettily flower as well given enough sun. You could plant a white hardenbergia each side of the steps (or even matching specimen eucalyptus ficilfolias!) and consider extending a simple pergola over an entertainment area that looks out over your masterpiece. Trust this inspires a little, Sandman. Keep in mind that the most interesting gardens have three layers: the canopy, the understory and the ground level shrubs, grasses, and ground covers; with the right inquiries to nurseries as to ‘microclimates’ and growth habits you will create a thing of joy – as much in the making as in completion. So far as I know the only other necessary qualification for creating a successful native garden is being a skillful pruner. Natives love to be pruned and shaped, and as long as you ‘prune to the node’, you will prevent die-back and disease, your foliage and flowering will be dense and glorious, and your garden will be the envy of the neighbourhood....See Moreadvice RE making back yard more kid and entertaining friendly
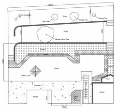
Comments (0)Hi, I am looking for some ideas on how to improve my backyard to make it safer and kid friendly, better for entertaining and also getting rid of structures like pond and brick structure underneath verandah. the back yard is also currently terraced with 3 levels . any ideas or help would be appreciated. have a smallish budget....See MoreKitchen-living reno re-design advice needed
Comments (20)All - Thank you so much for your suggestions. Very helpful! Oklouise – Thanks for your suggestions. I like what you’ve done. I had not thought of the the off-centre solid wall suggestion in the tv room. This will make the space more functional. Very helpful. Thanks. Siriuskey – your design was similar to oklouise’s, so again many thanks for this. I like what you did with the entry area so will see if I can make this work given the dimensions of the house. BTW - the house is brick but I am thinking of partly limewashing/whitewashing it - but this is a very low priority item right now. Dr Retro – thanks for your comments. Appreciated. Yes, I'll check the sizing of furniture etc. Kate – thanks for your question re: wall at the end of the dining area. I’d like to create an attractive focal point from the kitchen to the garage wall, rather than just have an off-centre garage door (i.e. going for a look more like the below). I’d also like more storage so I added the partition wall, which could also have cupboards on the garage side. But your vestibule idea could work too. I will look into that while taking into account the other ideas from houzzers here too. All very helpful. Thank you. Dreamer – thanks for your suggestions as well. These give me food for thought so need to ponder more. I’m not sure there will be enough space for a fridge and an island but will draw it up and see. Just to give you more info here, not essential, but I would have liked to be able to have another tv (hidden in a wall-mounted cabinet) on the existing east-west wall that divides the kitchen-tv-formal zones now where the tv faces the kitchen so I can watch the news while cooking. I have looked at adding storage to the entry area as I think the house needs more storage so I will look at this some more again. Thanks again. Really appreciate you taking the time to get back to me on this. Cheers. Thanks again everyone. Cheers....See More- 7 years ago
- 7 years ago
- 7 years ago
- 7 years ago
- 7 years ago
- 7 years ago
- 7 years ago
- 7 years ago
- 7 years ago






legendaryflame