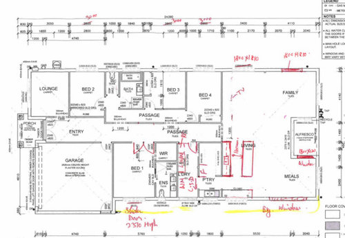
What are your suggestions on this floor plan please help me with this
4 years ago
last modified: 4 years ago
Featured Answer
Sort by:Oldest
Comments (18)
- 4 years agolast modified: 4 years ago
Related Discussions
Help! Floor plan ideas please
Comments (106)Thank you siriuskey. Yes that's what I was referring to, but I think I wasn't giving credit to the island sink, which would also serve for food prep. I was thinking about efficiency from my perspective. Euro bins next to sink in island, would be beneficial for ease of handling waste. Another consideration is: when using cooktop and extraction fan, will noise from fan interfere with person in study? Also, will steam from say, boiling water steam bother anyone using the study desk? I am not trying to throw cold water on the plan by my questions, I'm merely trying to imagine diff scenarios so as much as can be taken into consideration is. I have a glass splashback behind induction cooktop and a very effective extraction fan; however, when a large pot of water is at full boil, the glass steams up something chronic and I have to constantly wipe it and the underside of exhaust fan or else water drips down onto the cooktop (and any food I'm cooking)....See MoreKitchen floor plan suggestions please!
Comments (14)Thanks, great feedback and some new thoughts. We purchased this place as it we felt it was a good buy and could be a good place for my parents to downsize to however it may be that we end up selling it the near future so as mindful of making it as appealing as possible. Hence removing the island despite all the cabinetry being in good condition albeit in an unusual colour. We have previously put in an ikea kitchen and were really happy with the finish so will likely go with that again versus having custom made to keep the costs down. This is the living room into the kitchen... do you think it would make that area cluttered ok Louise if we had seating there as you had drawn? We are happy to remove doors make opening wider. I also understand that keeping the toilet smells seperate from the kitchen is important and I think turning the door would achieve that. Will remove pantry door siriuskey as I agree too many openings, I was going to use it for additional bathroom space but if I keep toilet seperate that will be a waste and opening shelving could look nice. Your laundry design oklouise is exactly as I planned so that’s reassuring....See MoreFloor plan advice for newbies. Please help!
Comments (16)Hi Kieran, I've spent a fun Sunday playing around with this... thanks for the challenge! Jumping in to post it though, I think my ideas overlap with Siriuskey and Lucia. Isn't it funny how similar solutions can be arrived at independently! Key points: - As far as possible, I've tried to stick with the existing walls. - Since Bed 2 & Bed 3 are quite small already, even though I've encroached into each to achieve separate entries, the impact is minimal, particularly for Bed 3. - I've used pocket doors to both ends of the WIR and to the store room for optimal functionality. - I've depicted Caroma Urbane compact toilet suites with wall concealed cisterns because they save a bit of space and both toilets can use that extra space in that direction. - It's a very stageable design. You may for instance decide to build the ensuite/WIR and reconfigure the bed 2/3 entries without doing any of the kitchen changes. Or you may decide to save the expense and not move the main WC into the existing store, though it does add a fair area to the living space (I've used the exact existing footprint of the store to save cost and demolition pain which is workable with the Caroma Urbane, but alternatively you could demolish and rebuild the wall behind the pan for a more spacious loo). - The Family/Dining area ends up being fairly generous and very flexible. I've added a door to the end of the corridor to screen the loo a bit better from the dining area and for noise separation for the study, but you may prefer to leave this off. - I've not mucked around with your windows, figuring the important thing was to get the concept down for you, except in the ensuite. Really good idea there to have a central mirror with a narrow window to each side to throw light on your face at the mirror. Has the side benefit of a symmetrical effect which is always good aesthetically. - I've also flipped the main bathroom door to relate better to Bed 2/Bed 3, though not strictly necessary. - I originally used the Bed 1 robe space as a big walk-in-pantry, but it didn't relate particularly well to the kitchen and it also left no provision for general storage. Rather than take up a lot of valuable kitchen space with a pantry which would reduce the length of the peninsula breakfast bar (not ideal), I came up with the idea of shallow shelves with a roller shutter which I think you'll find give you an amazing amount of readily accessible storage. I'd like to think it would be possible to source a horizonal roller shutter that would coil back into the dead space at the back of the fridge, but perhaps better to just go with a vertical shutter and avoid the headache!...See MorePlan for first house build - your thoughts or suggestions?
Comments (10)my suggestions include changing the staircase to have a halfway landing never winding steps, rearrange the kitchen, pantry and laundry, lose the biw and soffitts in the guest room and disguise the ens access door within the new MPR/guest room wardrobe, side access for understairs storage is much easier to use and, by the time you load and unload the laundry into a shute it would be quicker easier and cheaper to throw the washing down the stairs and save the space for more useful purposes ..pleased to see the good sized garage...cheapest rumpus, mancave and wet weather playroom with the addition of a few lockable storage cupboards and shelves...can't see the value in the extra hot water tap and gas outlet for the alfresco..rather extend paving across the back of the house and invest in a servery window to load dirty dishes directly into the kitchen for the dw and inevitably the wind blows smoke into the house so it's better to have a moveable barbq away from the walls and...upstairs hallway narrower to allow for extra steps, rearranged ens and wiw, avoid the void and use the space for a WIL or space for a baby's cot, dressing area, and/or leave the space open and invest in a gorgeous chest of drawers for linen and use the big WIL as a study nook with a separate small lounge and rearrange the bathroom with generous storage in the vanities, bigger shower and narrow freestanding bath...without all your dimensions some of my sizes are approximate but adding furniture helps understand the spaces much better and inside of wardrobes should always be at least 60cms plus the walls an doors and it appears that the plumbing access could be in the garage instead of the kitchen?...See More- 4 years agolast modified: 4 years ago
- 4 years ago
- 4 years ago
- 4 years ago
- 4 years ago
- 4 years ago
- 4 years ago
- 4 years ago
- 4 years ago
- 4 years ago
- 4 years ago



Kate