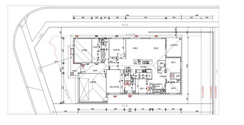
Review Request – North-Facing Draft Floor Plan (Victoria -Melbourne)
last month
Featured Answer
Sort by:Oldest
Comments (22)
- last month
- last month
Related Discussions
Custom floor plan
Comments (49)my 2 bobs worth. as someone who works with the elderly-the en-suite for your MIL is still not right. if she ever needs walking assistance,especially with a frame, getting past that door into the en-suite will be a nightmare. swap the vanity position for the shower. ensure there is no step-down into the shower area, and ditch the shower screen for a curtain. will make access much easier. especially if she ever needs assistance showering..it will be virtually impossible, and dangerous, with your current design. thinking long term..MIL will not always be there with you, so presumably you and your hubby will at some point end up in the master bedroom? consider the long terms implications of this-no good building something that suits her now, but would need major modification to suit your needs later. I would actually do away with the WIR at this time. Plan to add it later, if you would want it for yourself, but i would just use free standing furniture for her-no doubt she probably has her own, so it would be nice to have some of her own furnishings when she moves in with you - to make it feel more like her home. it will free up some floor space, and make access to the ensuite easier, without having to turn corners. I would also do away with the extended passage into the master. Take that door back in line with the other bedroom. Currently, it adds nothing, and may well limit your furniture placement for your family room, as the walkway will need to go around it. i have issue with the 2 person shower and double vanity in the same room. s the kids get older, they /you probably wont be comfortable using the room when you are showering, so mornings will be slowed down. Have you considered a 3 way bathroom/toilet/vanity area? We had this in our house, and it was the best decision ever. The shower and bath were in one room, with a separate toilet, and then a double vanity which opened to the passage. Everyone could use everything at the same time, without encroaching on each others privacy. Not sure about your state -but here, the toilet door would have to open out-if someone collapses in the powder room, you would not be able to get in with the door opening in, as they would be blocking the door. I do empathize with your dilemmas. We have spent 7 years planning an extension and remodel, then 2 years (!!!) working on the design with an architect, going backwards and forwards, and then the last 12 months nearly, changing and fine-tuning along the way as things were being built. It is not easy, but worth it. Having said that, you are unlikely to ever get it perfect, as your needs will change, your likes/dislikes will vary, and you will see other peoples homes and go "why didn't we do that". (Now if only i could take that on board myself, LOL)...See MoreFeedback on Floor Plan
Comments (28)Najeebah still work in progress. Thanks all for lovely suggestions. Here's some changes that we are thinking. - making it a sound proof wall between Master Bed & Kitchen wall as entry to Master bed has to be that way because Bed2 is going to be used as Nursery. WIR will have a sliding door instead of Hinged - Trying to swap master Ensuite's vanity with Shower and WC - Making family bathroom larger (not sure which way though as I really want to keep WC separate). - Skylights definitely on the agenda (cost depended) - Partition wall for games room which will only be used for kids to play and can be utilised as extra covered area during family barbeques. - Envirotecture , we are putting up a raked ceiling in kitchen/family as it is sloping slightly downwards towards our block so to have extra light in. Not saying have ignored other suggestions and will work on things on priority basis and as Beekon Pty Ltd suggested we have taken into consideration this as overall project and want to keep things that will suit our family for many years to come....See Moreplan advice please
Comments (27)oklouise, curious as per your comment "professionals don't seem to offer the clients time to test their own ideas"...........from our particular perspective, to professionally execute design (properly) there's actually/indeed no significant need for "testing" of anything - rather it's about confidently resolving a solution for people and we execute the service/process with confidence that mitigates the biggest risks with this game which are 1. not getting what you want (for various reasons/on various levels) and 2. budget blowouts......Testing this idea and that is a somewhat random process and it doesn't make sense, particularly when put into a cost/time structure, when its possible to work it all more effectively by filtering relevant information towards a particular end result.....And so, we think rather, it's about experienced, effective and targeted management of quality resolution of solutions..... and for practicality/cost reasons (for both sides) we (have to) implement a structured design process in that ideas are controlled, honed, focused and consolidated, rather than (expensively) experimented with and tested arbitrarily. The way we do this is by first firmly establishing and clarifying the variables, requirements and constraints BEFORE then working through developing an appropriate solution......this avoids the all too common situation of people going round in circles, aimlessly "testing" random ideas, hitting dead ends or pursuing paths of false economy........The information gathering is built into the process, but it's effectively/relatively quickly achieved and certainly contained. You then get the right/necessary information all sorted frontend, and coupled with knowledge and guidance of the most effective order of decision-making and truly the risk (of paying for a relatively open-ended process that I think you're referring to) is significantly mitigated. Perhaps it's just our way or doing things and that we're operate at a certain level acutely tuned into the design process, and client conscious & results focused, which more often than not, when you deal with the lower end/basic drafting "professionals", there is actually no "design" process happening at all, which is of course in that case is obviously not good value.... For the record, you clearly have capacity and talent for visualising 3 dimensionally and your skill demonstrated here is mostly/more limited by the (limited) information your working with.......before we offer any (professional) suggestions or advice, we endeavour to clarify & establish the context and constraints, and people's requirements and priorities. It doesn't make sense otherwise. Only then can we really begin to work through specific spaces/configurations/layouts one way or the other to best achieve viable and balanced solutions.... All the best PD :)...See MoreFloor plan and facade feedback
Comments (40)Western Sydney can be a very hot place in summer. So you've really got to try to minimise summer heat loads. What does this mean? Keeping the summer sun off your windows. Easy to do in the north, with appropriate length eaves. But much more difficult to do from the east & west. As the sun is lower in the sky & eaves become ineffective. Western sun is a particular problem, as the sun is in this direction at the hottest time of the day. So that is why quite a few people a few commenters have raise the issue of too many western windows. So how do you resolve this? It's difficult to do when the long sides of your home face east & west. But there are options to minimise western glazing. Firstly, eliminating or minimising windows. That's a very large western window in the dining area, which will get blazing hot in summer. I'd be eliminating this window (more in that later), or at least greatly reducing its size. I'd be eliminating the western wrap-around portion of the master bedroom window. Yes, it may look cool, but this will be at the expense of you comfort. You certainly don't want SW sun coming in your bedroom windows in summer evenings. Same goes for the media room. A very large western window means a very hot space. I'd this a true media room? If so, I'd think you'd want lower levels of glazing in this room. I'd actually eliminate this window, & take the following approach. Next, where possible, swap the western windows for glazing facing a different direction. You can do this in the media room, with long, thin windows. You can also do this in the upstairs living area. Again a large western window, which certainly should be swapped out for a northern window. Thirdly, locate rarely used rooms in the western side of the house. So they can bear the brunt of the western sun. Bathrooms, laundries (not in your case), & importantly, the garage. So I'd actually look at flipping the from portion of the house, so that the media room faces SE & the garage SW. Tough you won't have access from the garage to the laundry, which may be something you want. I'd then consider having the entrance to the home on the western side, beside the garage. This means you'll have a shorter hallway from the entrance to you living areas. Changes to the location of the garage to the western side may not be allowed, of the road is busier, or if the driveway is too close to the corner. So that would need to be looked at, if you were considering this change. As for your remaining western (& eastern) windows, you've got to try to minimise the amount of heat that comes through these windows. There's a few approaches. Louvred vertical sun shades or timber battens are an option. These will reduce the amount of sun striking the window, & increase privacy, but decrease the views out the window. Shutters or awnings are an option, but probably don't look as nice. Window treatments, such as low-e glass, are a good idea too - just note reviews for some single glazed low-e glass products aren't great. Western (& eastern) glazing should certainly be low SHGC (solar heat gain coefficient). As has been mentioned, windows should also be designed for cross-ventilation. A free was way too cool your home, especially effective at night. Winter in western Sydney can be pretty cold too. In winter it's all about letting the sun in, particularly the northern sun, as the sun is in the northern portion of the sky. As has been mentioned above, northern covered alfrescos aren't a great idea. Robbing north facing living areas of daylight, & winter sunshine. At the very least add a vergola to let some sun in here. you should also consider zoning your main living area. that is, having a door that can separate it from the rest of the house. Then you can just heat this room, instead of the entire house. Otherwise the staircase will act like a giant chimney, losing heat upstairs. You'd need to reverse the direction of the staircase, to add a door between it & the kitchen/laundry area. May not be ideal, but worth considering....See More- last month
- last monthlast modified: last month
- last monthlast modified: last month
- last month
- last month
- last month
- last month
- last month
- last month
- last month
- last month
- last monthlast modified: last month
- last monthlast modified: last month
- last month
- last month











oklouise