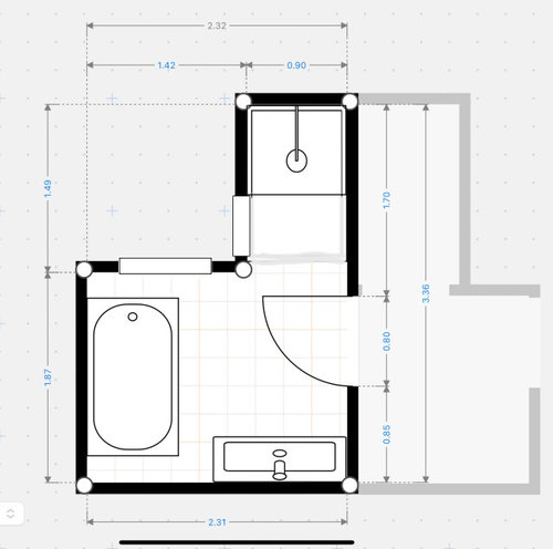
Our 1910 home has a 1970 era extension at the rear of the home where the kitchen, dining/sitting, laundry, bathroom and separate WC are. We are wanting to renovate, keeping the same footprint. We are not in a position to re-building.
Our major dislikes are the small kitchen area and the door access to the wet areas off the kitchen area.
We are considering an alcove area to contain the door to the wet area, keeping the kitchen/dining 'separate'. An idea is to 'extend' the hallway by removing the door and creating an arch (the hallway also has arches). We are happy to lose the BIR. And ok to reconfigure bathroom/laundry within plumbing limits.
Wish list items -
• a powder room style WC
• keep the bath
• large kitchen with more bench space utilizing the 'dead' space in the middle
• a big counter top that doubles as a dining table
• modern or walk-in pantry
Other info - north facing, driveway next to kitchen, the WC does have a window.
The floorplan isn't professional but created from our measurements and placed in an online program so it's certainly not exact. We would just like to see if anyone in the discussion has any ideas on how we can utilize the space better and make it more family friendly. I have drawn up on some photos what I am trying to convey with the alcove area. Thank you.
Kate
Kate
Related Discussions
Frosted glass doors on bath & laundry - yay or nay?
Q
Floorplan change - old 3 bed, 1 bath, no laundry house
Q
laundry and kitchen aren't functional, hallway seems a waste of space?
Q
Small house bathroom/ensuite/laundry redesign ideas
Q
oklouise