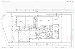
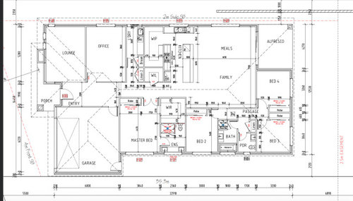
Hi All, We’re finalizing our floor plan and would appreciate any input from the community. This is a draft layout and we’re looking for design flaws, layout inefficiencies, or anything that might affect future comfort, practicality, or resale. Thanks in advance!
Kate
siriuskey
Related Discussions
Floorplan feedback request
Q
Request for feedback on my new floor plan
Q
House layout - feedback please
Q
Kitchen design feedback request
Q
sai DOriginal Author
bigreader
dreamer
dreamer
bigreader
sai DOriginal Author
sai DOriginal Author
bigreader
dreamer
dreamer
sai DOriginal Author
sai DOriginal Author
bigreader
sai DOriginal Author
bigreader
bigreader
dreamer
dreamer
dreamer
sai DOriginal Author