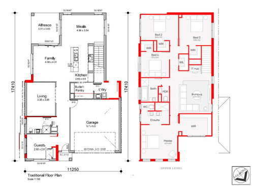
Hello brain trust, please help review the below plan, minimal changes as it is a volume builder and budget tight. There will be a door from guest to bathroon, and everything in the batroom swapped to the other wall. Thanks.
Others will comment more but the WIR between bed 2 and 4 is a waste. You’d get more hanging and storage with standard built on robes. You also need to do a scale furniture plan for size and placement for the guest bedroom, and it’s a shame to build a substantially sized new home and only get standard 900mm showers in two of the bathrooms.
All of the bathroom vanities are small. Make sure you have large mirror cabinets for storage. Hooks to hang hairdryer can help too as well as a ledge above the bath. Beware volume builders also typically mark up all the extras. This includes flooring, tiling appliances etc. if you can insist and perhaps pay for your colours and finishes (interiors) session and get these in your lump sum before you sign contract. Worth slowing down for that.
Good point on variances Kate. They can be a killer. Making sure there’s enough power points is a biggie as it’s hard to change after handover. And it’s murphys law that all the tiles that you’ll like are upgrades with pricing to match.
my suggestion include losing the small wiw in favour of bigger beds 2, 3 and 4 with biw, there's private access to upstairs bathrooms and bedrooms, generous walk in storage and a more comfortable IT area with wall shelves, desk and seating for more than one ..the downstairs lounge has northern aspect, there's a good sized entry plus a little extra space for a more private guest bedroom with bigger biw, comfortable guest bathroom and extra storage in the hallway ..there's some minor changes to kitchen, pantry and laundry with under stair storage and a curve for the bottom step will improve access going up and down and reconsider every window to make sure that size and location suits passive solar aspect and views to and from any neighbours
Hi Hope your doing Good! We specialize in construction cost estimation and material takeoffs for projects like yours. “If you need a detailed estimate, feel free to message us.”
bigreader
Kate
Related Discussions
Review my plans - new home, feedback and guidance wanted
Q
Character Home Extension Floor plan review
Q
Help reviewing plan
Q
Hi, please review plan
Q
bigreader
Jane M.
oklouise
Kate
Cee
Construct Estimates