Houzz Tour: A Green Home For Nature-Loving Retirees
This stylish, energy-efficient modular home allows a retiring couple to age in place, close to their children
Bettina Deda
3 October 2015
Houzz Australia Contributor. Design and copy writer, designer & stylist, collector of beautiful things, passionate about colour, interiors and art. Beauty and gratitude are my top personal values. The Art Gallery of NSW is a second home. The perfect weekend is browsing flea markets and antique shops. I love green tea. I am the proud mum of two lovely (wild) boys. Yoga and meditation have helped me step out of my comfort zone and experience new things.
Houzz Australia Contributor. Design and copy writer, designer & stylist, collector... More
An environmentally-conscious couple, looking to retire to a location closer to their children, found a block in the ACT suburb of Forde and couldn’t believe their luck. It sat opposite a nature reserve where they could pursue their interest in bushwalking and bird watching, and was the perfect place to walk their dog.
The couple’s love of nature also extended to the design of their new home – they wanted a house that was small, smart and energy-efficient. To realise their dream, they engaged Jigsaw Housing – a collaboration of architects, builders, and a scientist – to design and build their brand new home.
“Their brief aligned perfectly with our modular housing system and core business philosophy,” says Jigsaw architect Sarah Lebner. “We provide a simplified process for smart, high-performance homes with small footprints and affordable price tags.”
The couple’s love of nature also extended to the design of their new home – they wanted a house that was small, smart and energy-efficient. To realise their dream, they engaged Jigsaw Housing – a collaboration of architects, builders, and a scientist – to design and build their brand new home.
“Their brief aligned perfectly with our modular housing system and core business philosophy,” says Jigsaw architect Sarah Lebner. “We provide a simplified process for smart, high-performance homes with small footprints and affordable price tags.”
Houzz at a Glance
Who lives here: A retired couple and their dog, Toby
Location: Forde, ACT
Completed: January 2015
Size: 113 square metres
Architect: Sarah Lebner, Jigsaw Housing
Budget: $300,000 – $340,000 depending on the site; including carport, excluding soft landscaping
That’s interesting: There are a number of impressive sustainable design features in this modular house. It has high levels of insulation in the ceilings and walls to regulate temperatures. It also comes with a 2500-litre water tank, a photovoltaic (solar power) system, PVC-lined double-glazed aluminium windows, and has been tested for moisture control and air leakage.
These features and more have given the house an EER (Energy Efficiency Rating) of 7.9 stars.
HardieFlex fibre cement cladding in ‘Surf Mist’: James Hardie
Who lives here: A retired couple and their dog, Toby
Location: Forde, ACT
Completed: January 2015
Size: 113 square metres
Architect: Sarah Lebner, Jigsaw Housing
Budget: $300,000 – $340,000 depending on the site; including carport, excluding soft landscaping
That’s interesting: There are a number of impressive sustainable design features in this modular house. It has high levels of insulation in the ceilings and walls to regulate temperatures. It also comes with a 2500-litre water tank, a photovoltaic (solar power) system, PVC-lined double-glazed aluminium windows, and has been tested for moisture control and air leakage.
These features and more have given the house an EER (Energy Efficiency Rating) of 7.9 stars.
HardieFlex fibre cement cladding in ‘Surf Mist’: James Hardie
The red front door opens into a small entrance, which leads to the kitchen and dining area. The Stratco Carport system on the side of the house is designed to integrate clear Ampelite roofing over the entry, to provide a light-filled shelter at the front door.
Front door painted in ‘Gazpacho’: Wattyl; metal cladding Mini-Orb in ‘Dune’: Colorbond
Front door painted in ‘Gazpacho’: Wattyl; metal cladding Mini-Orb in ‘Dune’: Colorbond
Natural light floods the kitchen and dining area. Square-set cornices and higher doorways increase the sense of space and allow for plenty of cross ventilation.
In winter, electric heating panels on the walls add to the warmth that radiates from the insulated concrete floor. For the owners, it was very important to achieve the feeling of spaciousness in their home, but also to live in a house that maintains a comfortable ambient temperature throughout the year, with minimal heating and cooling.
In winter, electric heating panels on the walls add to the warmth that radiates from the insulated concrete floor. For the owners, it was very important to achieve the feeling of spaciousness in their home, but also to live in a house that maintains a comfortable ambient temperature throughout the year, with minimal heating and cooling.
Soft pelmet lighting is a feature in the living areas. “We used laminate joinery in ‘Carcass White’ – usually used inside cupboards – as a feature throughout the house to not only increase the sense of space, but also save on costs,” Lebner says.
The architect designed the joinery and had it built by Affinity Kitchens. The kitchen features finger-pull handles that also appear as shadowline details, and push catches to overhead cupboards. The sink disappears behind a slightly higher bar bench, which hides dirty dishes and clutter when entertaining guests.
Oven, cooktop, and dishwasher: Omega; SHU700X range hood: Smeg; fixtures and sink: Southern Innovations; benchtop laminate in ‘Corsica Matt’: Polytec
The architect designed the joinery and had it built by Affinity Kitchens. The kitchen features finger-pull handles that also appear as shadowline details, and push catches to overhead cupboards. The sink disappears behind a slightly higher bar bench, which hides dirty dishes and clutter when entertaining guests.
Oven, cooktop, and dishwasher: Omega; SHU700X range hood: Smeg; fixtures and sink: Southern Innovations; benchtop laminate in ‘Corsica Matt’: Polytec
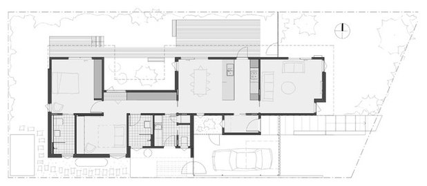
At just 113 square metres, the available space works hard, according to Lebner. Flexibility is the key to space-saving, with the living room and second sitting area both able to be opened up or closed down for shared or private use. The guest toilet combines with the laundry, and a generous study desk and storage bank share the hallway space.
Ease of circulation, level surfaces, and low-maintenance finishes make life in the home easy and safe, and allow the owners to age in place.
Ease of circulation, level surfaces, and low-maintenance finishes make life in the home easy and safe, and allow the owners to age in place.
The living room at the front of the house can be closed down as a second guest area if needed, or opened up to flow through to the kitchen. By separating it from the kitchen and dining area, it provides an additional room that is versatile and functional.
The concrete floor is a burnished slab and the windows have aluminium profiles, thermally broken by an internal ERP (Extruded Rigid Polymer) insulating skin.
The owners and their dog Toby particularly like the living room, as it’s a very inviting space and has lovely views to the gardens and the bushland beyond.
Trend thermAL windows: Trend Windows; wall paint in ‘Worn White’: Haymes
The concrete floor is a burnished slab and the windows have aluminium profiles, thermally broken by an internal ERP (Extruded Rigid Polymer) insulating skin.
The owners and their dog Toby particularly like the living room, as it’s a very inviting space and has lovely views to the gardens and the bushland beyond.
Trend thermAL windows: Trend Windows; wall paint in ‘Worn White’: Haymes
A large, built-in study desk along the hallway activates otherwise dead space and makes the small home look more spacious. The second bedroom – also usable as multi-functional space – is located opposite the study desk. It features a custom-built sliding panel that can open to the study to allow for plenty of light, or close down if guests are sleeping there.
“We made sure that all living spaces and the master bedroom have access to generous northern light during the day, and passive heating in winter,” Lebner emphasises.
St Tropez carpet in ‘780 Eclipse’: Godfrey Hirst
“We made sure that all living spaces and the master bedroom have access to generous northern light during the day, and passive heating in winter,” Lebner emphasises.
St Tropez carpet in ‘780 Eclipse’: Godfrey Hirst
Both bathrooms feature under-tile heating and Hydrotect self-cleaning tiles. The black and white palette flows through the house, accentuating the minimalistic interior.
“An 8-star home uses 53 per cent less energy per square metre than a 6-star home, which is the industry benchmark in the ACT,” Lebner explains.
Optima Anthracite floor tiles and Plural One Matt wall tiles: Hydrotect; toilet and NUO wall-mounted bathroom sink: Vitra
“An 8-star home uses 53 per cent less energy per square metre than a 6-star home, which is the industry benchmark in the ACT,” Lebner explains.
Optima Anthracite floor tiles and Plural One Matt wall tiles: Hydrotect; toilet and NUO wall-mounted bathroom sink: Vitra
The architect optimised the home’s orientation, the location of windows, and the sizes of the eaves to ensure that the design maximises sunlight striking the slab in winter, but also shades the slab completely in summer. Insulating the underside and edges of the slab keeps the house warm in sunny Canberra winters. However, the insulation only works effectively when the orientation of the house is ideal. Overheating can become an issue if the home is not designed to shade the windows in summer. A well-positioned home that is ventilated during the evening can take advantage of the concrete slab to keep the house cool during summer too.
The modular design easily fell into place. Wherever you look in the house you always have views to the outdoors, with windows at the end of every corridor. A tiny planted courtyard garden between the carport and the dining room complements this home’s connection to nature and the outdoors.
The retirees are delighted with their home. They asked the architect to design a small, smart and energy-efficient house. Having built before, they knew the importance of having an experienced builder committed to their design, energy efficiency, and a high quality of construction.
TIP: The owners’ top tip for empty nesters starting their downsizing journey is to shed all the accumulated baggage and unnecessary furniture, and start with a clean slate. Even if it’s a scary thing to contemplate, they found it very liberating.
TIP: The owners’ top tip for empty nesters starting their downsizing journey is to shed all the accumulated baggage and unnecessary furniture, and start with a clean slate. Even if it’s a scary thing to contemplate, they found it very liberating.
Related Stories
From The Pros
Look Closer! 10 Costly Items Missing From Your Drawings
By Adam Hobill
By overlooking the detail of these items, you are more exposed to unforeseen costs
Full Story
Incredible Homes
6 Fabulous Australian Prefab Homes
Step inside six pre-fabulous homes that give conventional homes a run for their money
Full Story
Budgeting Your Project
How Much Does a Kitchen Benchtop Cost?
By Anne Ellard
A rock-solid guide to benchtop materials and pricing
Full Story
Lifestyle
Things You Can Do Now to Future-Proof Your Home As You Age
Don't wait till retirement to make your home functional for mature-age living. If you do it now, you'll save time, money and inconvenience
Full Story
Kitchen Island Benches
Key Measurements to Consider When Designing the Perfect Kitchen Island
By Anne Ellard
Gather your friends and family to cook, eat and chat around a perfectly proportioned kitchen island
Full Story
Kitchens
10 Kitchen Drawers That'll Make Life Easier
By Anne Ellard
Take the strain off your back and the stress out of finding things by putting these clever drawer ideas to work in your new kitchen
Full Story
Building
Building Jargon Untangled for the Average Homeowner
By Adam Hobill
These jargon busters will give you more confidence during the building process, and could potentially save you thousands
Full Story
Budgeting Your Project
The Missing Link That Will Eliminate Budget Blow-Outs
By Adam Hobill
If you are building or renovating you are probably a bit freaked out by the thought of budget blow-outs. This tip will save you heaps...
Full Story
Bathroom Expert Advice
Safety First: Look-Ahead Design Strategies for a Future-Proof Bathroom
By Janet Dunn
Take the long view for a beautifully safe bathroom that you'll love now and as you grow old gracefully
Full Story










Hi vanper, please contact Sarah from Jigsaw Housing directly. She can help you with your enquiry. Thanks.
Hello. We source them from Beaumont Tiles. They may know other suppliers if you aren't based locally.