Houzz Tours
Houzz Tour: Welcome to the Jungle in Suburban Brisbane
Architect John Ellway built in the undercroft of a century-old Brisbane cottage to create terrarium-like living spaces
Terrarium House is the home of architect John Ellway and his partner Amber Winter. After an 18-month search for a home, they stumbled across a one-bedroom cottage in Highgate Hill, Brisbane. While many would have baulked at the century-old house crumbling into a backyard jungle, Ellway and Winter saw its potential and transformed the cottage into a lush, light-filled home that embraces its wild surrounds.
Ellway and Winter wanted a home that could adapt to a young family and stay comfortable throughout the seasons. After looking at houses for more than a year, the couple nearly gave up on finding a property until they spotted this one-bedroom cottage. Being 100 years old, the house had certainly seen better days, but Ellway and Winter saw its potential.
“The land falls about 2.5 metres from the footpath to the yard, and this change in level meant that the cottage could grow by inhabiting the open undercroft below,” Ellway says. “The streetscape and the cottage’s relationship to its twin neighbour could remain intact without raising the house.”
The cottage has a north-facing backyard, so building in the undercroft lets it receive sunlight throughout the day while maintaining cooler internal temperatures during hot Queensland summers.
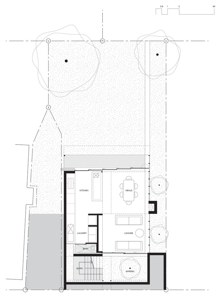
Size and cost were predominant constraints on the project because the site was a relatively small 215 square metres, the cottage needed extensive repair work, and the budget only allowed for a small increase in footprint. “Planning was key to ensuring every space in the house enabled multiple uses or borrowed from one another,” Ellway says. “We created bedrooms that could become larger play areas; vanities that open onto circulation; openings that borrow views from neighbouring backyards; a laundry space that serves as an extension of the kitchen; and a living space that feels as open as an outdoor patio.”
The first floor of the house has two flexible bedrooms at the front, and a bathroom and master bedroom towards the rear. There are also two voids: the first is at the entrance to the house where a walkway and stairs provide access to each level; the second is above the ground-floor dining area adjacent to the first-floor master bedroom.
A mesh screen abutting the footpath is covered with passionfruit vine, concealing the front of the house. The screen is secured so the large doors and panels around the house can remain open for cross ventilation.
A metal-and-timber deck walkway provides access to the house, crossing the void at the entrance. This south-facing void has lush ferns and plant species that don’t like a lot of sun, and the passionfruit vine protects them from early-morning and late-afternoon sun. Ellway also selected the vine for its rapid growth. “I like that it is a productive plant – one we can use and eat. Passionfruit cocktail time?” Ellway says.
A translucent ceiling protects the external walkway and stairs, which descend to the garden on the lower level. “The fundamental strategy was to create an ambiguous line between internal and external garden – are you inside or out?” Ellway says. “One of the key reasons for this was to make the spaces feel bigger. The house has only 105 square metres of internal floor area, but the ambiguity of the planting makes the perceived area much larger.”
A translucent ceiling protects the external walkway and stairs, which descend to the garden on the lower level. “The fundamental strategy was to create an ambiguous line between internal and external garden – are you inside or out?” Ellway says. “One of the key reasons for this was to make the spaces feel bigger. The house has only 105 square metres of internal floor area, but the ambiguity of the planting makes the perceived area much larger.”
The bedrooms are grouped on the first floor, accessed though the original cottage door. Two (future) children’s bedrooms are positioned at the front of the house and have wide openings off the hallway to make a larger room for children to play together. The bathroom is located in the centre of the first floor and the master bedroom at the rear, adjacent to the void above the dining area.
Sliding panels, instead of doors, can be adjusted to manage the level of privacy and openness in the front bedrooms.
PH Hat wall lights by Poul Henningsen: Louis Poulsen
PH Hat wall lights by Poul Henningsen: Louis Poulsen
The bedrooms have custom-designed timber beds, shelves and wardrobes made using New England blackbutt and ply.
Nooks for trinkets and treasures were inspired by memories of the owners’ childhood homes and feature in these rooms.
Wardrobes, built-in beds and shelves: Mast Furniture
Wardrobes, built-in beds and shelves: Mast Furniture
A large panel wall slides open to allow breezes though the house from yard to street, and a garden sits across the void. Widely spaced blackbutt timber boards provide a deck-like flooring surface, while the bathroom sits at the centre of the first floor, with the vanity outside the wet space.
“Its placement here is for two reasons: The first is that toothbrushes should never be in the same space as a WC, and second – and probably more important – the daily ritual of brushing teeth and drying hair becomes a social one that isn’t hidden away,” Ellway says.
“Everyone can communicate while breakfast or dinner is being made. Not just on the upper floor of the cottage, but down though the void to the kitchen and living areas.”
“Everyone can communicate while breakfast or dinner is being made. Not just on the upper floor of the cottage, but down though the void to the kitchen and living areas.”
The shower, like the front entry space, has a semi-transparent polycarbonate roof that lets in light and the sound of rain. The floor is timber decking and the walls are covered with limestone tiles. “The bathroom was inspired by memories of showering in houses and hotels while travelling in Asia,” says Ellway. “During the day it is a light-filled space that feels almost open to the sky. At night the space becomes a dark cave with a dim source of warm light near the entry.”
The blackbutt boards in the wet space offer a warm, free-draining surface underfoot with regular floor tiles beneath them.
Solasafe 90 percent UV-translucent ceiling in Silver Mist from Ampelite; blackbutt decked flooring and Whittle Waxes water stopper: Britton Timbers
The blackbutt boards in the wet space offer a warm, free-draining surface underfoot with regular floor tiles beneath them.
Solasafe 90 percent UV-translucent ceiling in Silver Mist from Ampelite; blackbutt decked flooring and Whittle Waxes water stopper: Britton Timbers
Ellway worked closely with cabinet makers and joiners as well as carpenter and welder Ash Brown, who did much of the steel work, experimenting with less conventional ideas such as the rail and shelf in the bathroom.
Gris Foussana limestone tiles: Slate & Stone; tapware: Grohe; steel towel rail and shelf: Ash Brown
Gris Foussana limestone tiles: Slate & Stone; tapware: Grohe; steel towel rail and shelf: Ash Brown
The master bedroom sits adjacent to the large void, allowing passive surveillance and communication throughout the house. “The connection of the two levels enables chatter and activity,” says Ellway.
The stairs at the front of the house descend to the garden at the bottom of the void. Concrete blocks on the retaining wall create a terraced garden.
Steel stairs and balustrade: Ash Brown
Steel stairs and balustrade: Ash Brown
On the lower level, the living space sits below the front of the house, with the dining area and kitchen opening onto the backyard. The kitchen wraps into the laundry and a second bathroom, and the walkway of the master bedroom overlooks the space.
“The lower level has been designed and detailed to conjure memories of the former shadowy undercroft with black-stained ceilings creating compression as you enter,” says Ellway. A solid wall to the west protects the space from afternoon sun, while fine-textured glass to the east captures winter morning sunlight.
Pool VI (2016) artwork: Jordy Hewitt
Pool VI (2016) artwork: Jordy Hewitt
Large timber-framed sliding doors enclose the north and south sides of the lower level. They are invisible when open, sliding behind external walls and creating spaces that feel ambiguous. “Are you inside the house or still outside?” says Ellway.
The perimeter ledge around the living and dining area creates the feeling of sitting below garden level. “This is a space sitting in shadow, allowing retreat from the intense Queensland light,” says Ellway.
Cesta table lamp: Santa & Cole
Cesta table lamp: Santa & Cole
Many details in the house were subconsciously inspired by Ellway and Winter’s personal memories, which they only realised after living in the house. “The translucent obscure glass and the use of screens to open and divide space evoke our travels to Japan,” says Ellway.
Deep eaves protect glazing to the north in summer and allow sun to stream into the house in winter. Dappled light and shadows filter through the textured glass that blurs the view of the lush planting along the side of the house, like a soft-focus lens. “I love watching the way the light changes throughout the days and seasons,” Ellway says.
The lighting is minimal and features only where needed – over the kitchen bench, dining table and for reading – creating an ambient environment that aids relaxation in the evening before sleep. The rest of the space is lit by garden lighting outside the glazing to enrich the sense of being surrounded by lush greenery.
PH 5 pendant by Poul Henningsen: Louis Poulsen
PH 5 pendant by Poul Henningsen: Louis Poulsen
The kitchen has two zones – a public area for food preparation, cooking and entertaining, and a hidden area for appliances, washing and the pantry.
Look up from the dining area and you can see the bathroom vanity, giving a sense of the openness and connection within the interior.
Look up from the dining area and you can see the bathroom vanity, giving a sense of the openness and connection within the interior.
The kitchen island sits on a narrow, rendered-block plinth and is made with solid blackbutt and topped with black granite. The concrete plinth reduces the scale of the island and makes it feel more like a piece of furniture floating in the space. Open shelves are filled with ceramics, while appliances are concealed on the other side.
Lunar Black granite benchtop with leather finish: SNB Stone and Precision Stone Services
Lunar Black granite benchtop with leather finish: SNB Stone and Precision Stone Services
A large concrete bench extends along the western wall of the house, which is partly below ground level to protect the living areas from afternoon sun. The cantilevered concrete bench is structural, poured as part of the wall construction then honed and polished to finish. Wide timber drawers and the dishwasher are hung from the underside of the bench. “Keeping the polished-concrete floor visible below the cabinetry makes the space feel larger and wider – an important strategy in a house of only 105 square metres,” says Ellway. A timber pelmet hides the custom-made cooktop exhaust and LED lighting.
The fridge, washer, dryer and pantry are at the other end of the kitchen. “The pantry has a secret,” Ellway says. “A large metal hinge allows it to pivot away from the wall as a complete piece of cabinetry. Behind it sit many of the services for the house, including instantaneous hot water, patch panels, LED transformers, a solar inverter and a space for future batteries.”
The fridge, washer, dryer and pantry are at the other end of the kitchen. “The pantry has a secret,” Ellway says. “A large metal hinge allows it to pivot away from the wall as a complete piece of cabinetry. Behind it sit many of the services for the house, including instantaneous hot water, patch panels, LED transformers, a solar inverter and a space for future batteries.”
A steel rod with a timber shelf hangs from the ceiling above the kitchen bench. The rail is used for hanging everyday items, such as utensils and tea towels, and the shelf is for pots, knick knacks and plants.
Oven, fridge, gas cooktop and integrated dishwasher: Fisher & Paykel
Oven, fridge, gas cooktop and integrated dishwasher: Fisher & Paykel
A large basin at the far end of the kitchen bench is multi-purpose. “It can be used for laundry, as a bath for children, and for the washing of large pots and pans,” Ellway says. “It’s a memory of the precast tubs found beneath many Queenslanders.”
A semi-outdoor bathroom with a shower is at the end of the kitchen, enclosed by a textured-glass sliding door. It’s next to a fern-filled garden and opens to the front void, enhancing the terrarium-like space.
Tell us
What do you find most interesting about this home? Tell us in the Comments, like this story, and save the images. Join the conversation.
More
Want more great design? Don’t miss last week’s Houzz Tour: Prized Seaside Manor Reimagined for Modern Living
A semi-outdoor bathroom with a shower is at the end of the kitchen, enclosed by a textured-glass sliding door. It’s next to a fern-filled garden and opens to the front void, enhancing the terrarium-like space.
Tell us
What do you find most interesting about this home? Tell us in the Comments, like this story, and save the images. Join the conversation.
More
Want more great design? Don’t miss last week’s Houzz Tour: Prized Seaside Manor Reimagined for Modern Living

































Who lives here: Architect John Ellway and Amber Winter
Location: Highgate Hill, Queensland
Size: 105 square metres internally, with three bedrooms and two bathrooms on a 215-square-metre site
Architecture: John Ellway. Architect
“The house began as an exercise in pragmatics and managing problematic site conditions, and finished as a flexible, adaptable family home layered with our memories of childhood and travels,” Ellway says.