Room Of The Week
Popular Houzz Series
Popular Houzz Series
Appears in
See also
Before & AfterBudget BreakdownStickybeak Of The WeekCreatives At HomeAt Home With...Best Of The WeekRoom Of The WeekProject Of The WeekPicture PerfectDesigner ProfilesMade Local3 Things I Wish My Clients KnewHow Do I...Buyer's GuidesExpert EyeInnovation AlertFrom The ProsSo Your Style Is...Spotted!Fun HouzzHouzz Around The WorldQuizzesHome Time
Room of the Week: A Luxurious Low-Maintenance Seaward Kitchen
Subdued but luxurious materials make this kitchen shine, without stealing attention from the ocean view
In a Q&A format, we talk to the designers – and examine the creative thinking – behind some of Houzz’s most loveable rooms.
Brief
A Sydney family approached Tanner Kibble Denton Architects with a newly purchased, well-worn, Federation/Arts and Crafts-style home. It had been previously divided into two apartments and therefore had an awkward layout with duplications. A coherent and well-planned configuration with definition of spaces was essential in the transformation of this casual yet luxurious family home.
“Interiors-wise they wanted a luxurious but not precious space,” says O’Neill.
A Sydney family approached Tanner Kibble Denton Architects with a newly purchased, well-worn, Federation/Arts and Crafts-style home. It had been previously divided into two apartments and therefore had an awkward layout with duplications. A coherent and well-planned configuration with definition of spaces was essential in the transformation of this casual yet luxurious family home.
“Interiors-wise they wanted a luxurious but not precious space,” says O’Neill.
Starting point
The home, nestled into the terraced hillside behind Sydney’s Bronte Beach, celebrates detail and delights in unexpected elements. The client was interested in achieving open-plan living while avoiding a singular, voluminous space.
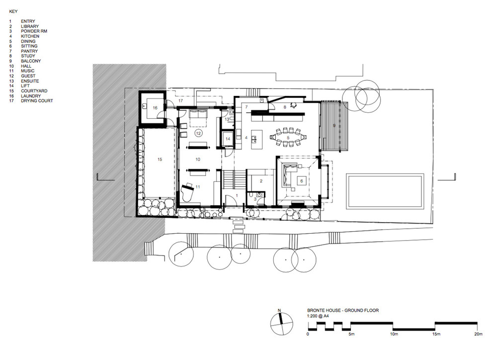
The kitchen was located at the centre of the plan, the first port of call from the entry atrium up to the living level, with connectivity to other rooms via the adjacent wide corridor as well as views to the ocean over the dining space. A large slot skylight floods the benches with light from above, which makes this area even more appealing as a gathering space for family and friends.
Above everything, O’Neill says the owners wanted to be able to see the ocean when they were in the kitchen.
The home, nestled into the terraced hillside behind Sydney’s Bronte Beach, celebrates detail and delights in unexpected elements. The client was interested in achieving open-plan living while avoiding a singular, voluminous space.
The kitchen was located at the centre of the plan, the first port of call from the entry atrium up to the living level, with connectivity to other rooms via the adjacent wide corridor as well as views to the ocean over the dining space. A large slot skylight floods the benches with light from above, which makes this area even more appealing as a gathering space for family and friends.
Above everything, O’Neill says the owners wanted to be able to see the ocean when they were in the kitchen.
Key design aspects
Design approach: Each room has subtle offsets, screen walls, sliding doors and, most critically, a series of skylights carrying shafts of light through the varying levels, further defining the interior spaces.
Colour scheme: The detail and materials are understated to provide a subdued backdrop to the living areas, with additional appliances and storage hidden behind a sliding timber door to the butler’s pantry.
Design approach: Each room has subtle offsets, screen walls, sliding doors and, most critically, a series of skylights carrying shafts of light through the varying levels, further defining the interior spaces.
Colour scheme: The detail and materials are understated to provide a subdued backdrop to the living areas, with additional appliances and storage hidden behind a sliding timber door to the butler’s pantry.
Fittings and fixtures: Artedomus Inax Yohen border splashback tiles. KWC Eve sink mixer. Miele Wolf stovetop. Mater leather and wood high stools from Space Furniture. Italian Bedonia stone island with mirrored base from Artedomus. Grey mirror from Varga Bros. Aluminium spun pendant lights by Justin Lamont of LifeSpaceJourney from Workshopped.
Thinking behind the arrangement of furniture
“The blue-tiled splashback was to reflect the colour of the ocean and bring it inside. The stools? I just loved the shape and simplicity of them and they are very comfortable,” says O’Neill.
“The blue-tiled splashback was to reflect the colour of the ocean and bring it inside. The stools? I just loved the shape and simplicity of them and they are very comfortable,” says O’Neill.
Challenges worked around
Weber says that during construction, a large intact sandstone boulder was discovered on the basement level, which resulted in TKD starting an “exuberant” re-design of the plan in order to preserve this unique element of the site. “This boulder adds to the immediacy of the connection of the house to its place on Sydney’s rocky, coastal headland.”
Interior designer Cheryl O’Neill says the biggest challenge was getting the SubZero refrigerator into the kitchen. “It was very big!”
Weber says that during construction, a large intact sandstone boulder was discovered on the basement level, which resulted in TKD starting an “exuberant” re-design of the plan in order to preserve this unique element of the site. “This boulder adds to the immediacy of the connection of the house to its place on Sydney’s rocky, coastal headland.”
Interior designer Cheryl O’Neill says the biggest challenge was getting the SubZero refrigerator into the kitchen. “It was very big!”
Why do you think this room works?
Weber says that unlike many coastal houses there is a luxurious, urban feel to the materials and finishes throughout the exterior and interior of this home. Note the aquarium to the side of the kitchen, which was requested in the original brief.
O’Neill believes that in regards to the kitchen it is primarily functional. “It’s great for serving up the kids’ dinner or shaking a cocktail during a dinner party with friends.”
Tell us
What do you love about this room? Tell us in the Comments below. And don’t forget to save your favourite images, like the story, and join in the conversation.
More
Love creative design? Check out last week’s Room of the Week: A Plush Dining Area in Bondi Beach
Weber says that unlike many coastal houses there is a luxurious, urban feel to the materials and finishes throughout the exterior and interior of this home. Note the aquarium to the side of the kitchen, which was requested in the original brief.
O’Neill believes that in regards to the kitchen it is primarily functional. “It’s great for serving up the kids’ dinner or shaking a cocktail during a dinner party with friends.”
Tell us
What do you love about this room? Tell us in the Comments below. And don’t forget to save your favourite images, like the story, and join in the conversation.
More
Love creative design? Check out last week’s Room of the Week: A Plush Dining Area in Bondi Beach














Answers by Darcy Weber of TKD Architects and Cheryl O’Neill, owner and interior designer at House to Home Design
Who lives here: A family of five
Location: Bronte, Sydney, NSW
Size: Kitchen: 13 square metres, butler’s pantry: 7 square metres